Hər bir detalın böyük ailənin ehtiyaclarına uyğunlaşdırıldığı, komfort və funksionallığın ön planda tutulduğu bu möhtəşəm villa layihəsi satışa təqdim olunur. Ümumi 413 kv.m-lik sahəni əhatə edən bu mülk, müasir memarlıq elementləri ilə dinc həyat tərzini bir araya gətirən sənət əsəridir.
Geniş Planlama və İnteryer İmkanları
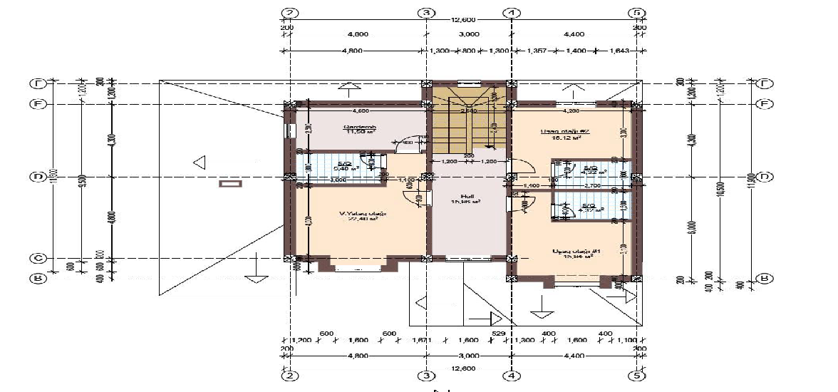
Bu layihədə ailənin hər bir üzvünün şəxsi məkanı və rahatlığı xüsusi diqqət mərkəzindədir. Evdə ailəvi istirahət üçün nəzərdə tutulmuş işıqlı və geniş zal, praktik planlaması ilə fərqlənən mətbəx və evi daxil olduğunuz andan etibarən geniş hiss etdirən holl yer alır. 5 geniş yataq otağı ailə üzvləri üçün fərdi sahələr yaradır, 6 sanitar qovşağı isə gündəlik həyatda maksimum komfortu təmin edir. Səliqəni qorumaq üçün nəzərdə tutulan ayrıca qarderob otağı və məişət işlərini asanlaşdıran çamaşırxana, evin funksionallığını zirvəyə daşıyır.
Eksteryer və Landşaftın Harmoniyası
Villa təkcə daxili şəraiti ilə deyil, həm də xarici mühiti ilə heyran edir. 0.1184 hektar (təxminən 12 sot) torpaq sahəsində inşa edilən bu fərdi yaşayış evi, açıq havada dincəlmək üçün böyük verandaya malikdir. Həyətdə yerləşən dekorativ hovuz və xüsusi dizayn edilmiş landşaft zonası ev sahiblərinə öz fərdi "spa" mühitini təqdim edir. Avtomobillərin təhlükəsizliyi üçün nəzərdə tutulmuş 39.47 kv.m-lik talvar və əlavə 20.36 kv.m-lik texniki otaq sahəsi layihənin hər bir santimetrinin səmərəli istifadə olunduğunu sübut edir.
Keyfiyyət və Əlçatanlıq
"Aztürkalman" olaraq təqdim etdiyimiz bu layihə sadəcə bir tikili deyil, illər boyu davam edəcək ailə istiliyinin təməlidir. Ümumi inşaat dəyəri 139 500 ₼ olan bu villa, həm büdcə səmərəliliyi, həm də premium yaşayış standartları ilə rəqiblərindən fərqlənir.
Siz də genişliyin, təhlükəsizliyin və estetik gözəlliyin bir araya gəldiyi bu xüsusi məkanda yaşamaq istəyirsinizsə, layihəmizlə daha yaxından tanış ola bilərsiniz.
